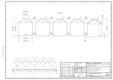
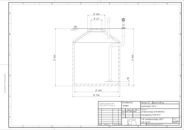
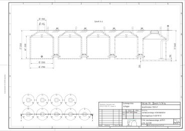
Beton Löschwasseranlage

Beton Löschwasseranlage

Eine der zentralen Maßnahmen im vorbeugenden Brandschutz ist die Bereitstellung von ausreichend Löschmitteln.
Bei neuen Erschließungen ermöglicht ein dezentraler Löschwasserbehälter die Reduzierung der Querschnitte in der
Trinkwasserversorgung. Die Lieferung und Installation, einschließlich aller erforderlichen Zubehörteile, erfolgt gemäß
der Norm DIN 14230.

1 bis 10 (von insgesamt 10)