Eine der zentralen Maßnahmen im vorbeugenden Brandschutz ist die Bereitstellung von ausreichend Löschmitteln.
Bei neuen Erschließungen ermöglicht ein dezentraler Löschwasserbehälter die Reduzierung der Querschnitte in der
Trinkwasserversorgung. Die Lieferung und Installation, einschließlich aller erforderlichen Zubehörteile, erfolgt gemäß
der Norm DIN 14230.
Behälterverbindung standard mit Forsheda-Dichtung DN 150 / *Ringraumdichtung gegen Aufpreis*
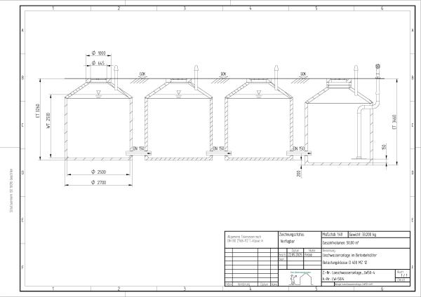
4 x Betonspeicher für Löschwasser nach DIN 14230 mit Schachtabdeckung KL. D 400
Löschwasserbehälter mit vormontierten Löschwassersauganschluss Form A nach DIN 14244 , Flanschanschluss DN 100
inkl. Transportkosten für PLZ 0-19 / 98-99
(auch in anderen PLZ-Gebieten gegen Aufpreis lieferbar)
Hier finden Sie die Technischen Zeichnungen: PDF