- Volumen von 3.200 bis 17.400 Liter
- Die Betonzisternen werden bis 9100 Liter mit fertig aufgesetztem Konus geliefert.
- 30 Jahre Garantie auf den Werkstoff Beton
- Abdeckung begehbar - Klasse A, optional auch Klasse B ( PKW befahrbar bis 12,5t ) oder Klasse D ( LKW befahrbar bis 30t )
***Die Preise der Betonzisternen sind inkl. Transportkosten und inkl. einer Stunde Kranzeit!***
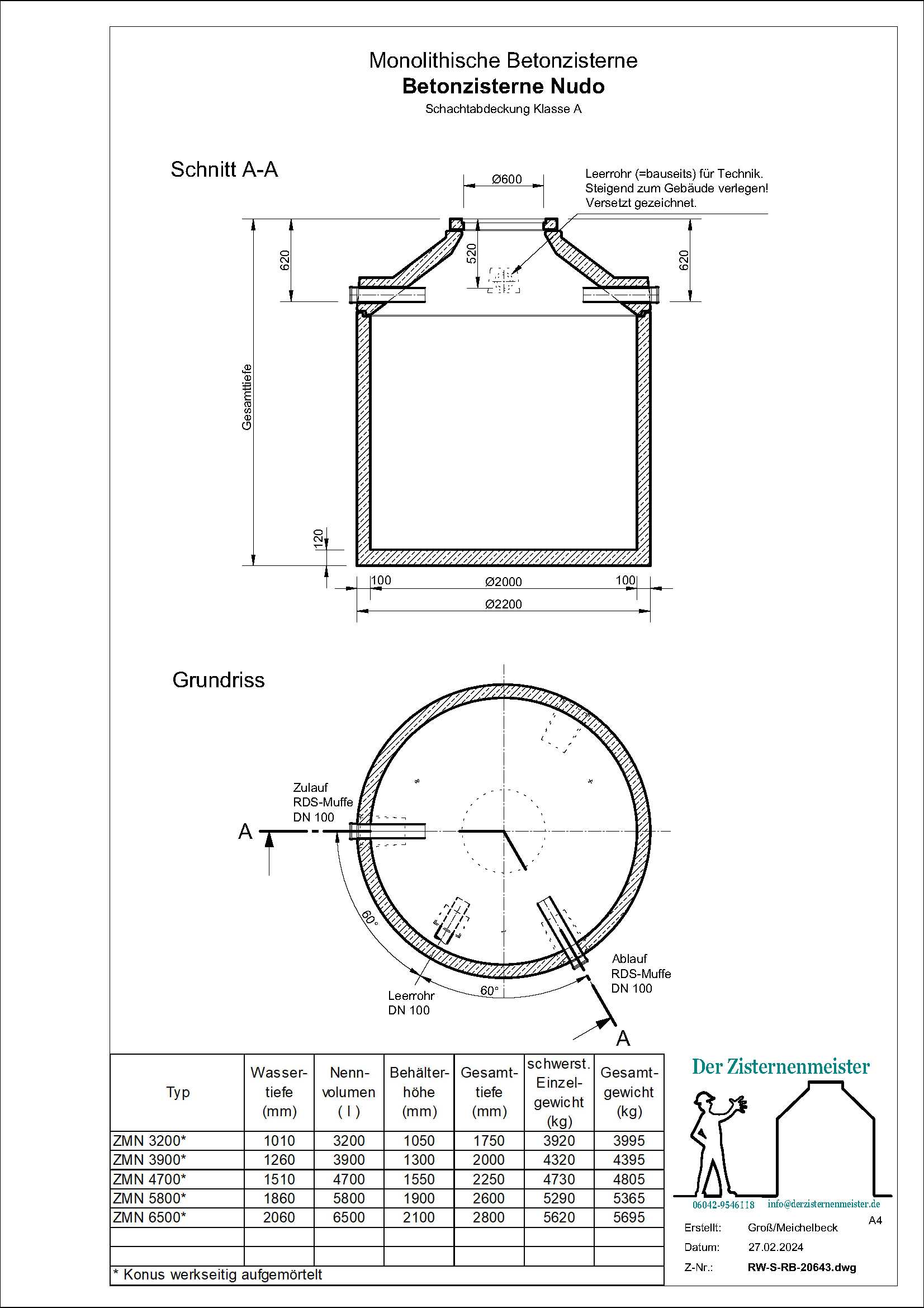
Hier finden Sie die Technischen Zeichnungen: Technische Zeichnung
Hier finden Sie das Kranlastdiagram: PDF
Gartenpumpe Solid mit SE: Edelstahl Tauchpumpe VA 4 Zoll mit 1" Anschluß,
integrierter Schaltautomatik und schwimmder Entnahme
Qmax= 5,10 m³/h, Hmax= 4,80 bar
Gartenpumpe Premium mit SE: Divertron 900 X Automatik mit 1" Anschluß
und schwimmender Entnahme
Qmax= 6,00 m³/h, Hmax= 4,50 bar